1 of 12
property detail images
property detail images
property detail images
property detail images
property detail images
property detail images
property detail images
property detail images
property detail images
property detail images
property detail images
property detail images
€2,300/ Month

Quiet and close to the city center - fully furnished flat with roof terrace in Augsburg

Baumgartnerstraße

Augsburg

Objectnumber32759
Type
flat
Rooms
2
Size
95
Floor
1
Persons
Max. 2
Free from
now
Rental duration
at least 90 days
Deposit
€4,600
Rent
€2,300 per month
Included Services
  • additional costs (including electricity / water and heating)
  • waste fees
  • washing machine
  • towels and bed towels upon arrival
Additional costs
  • parking space: 70.- € per month
  • broadcasting fees
  • final cleaning at cost
Notes
  • Pets not allowed
  • Smoking is not allowed

2 rooms

95

2 persons

€2,300/ Month
Contact Person

You have questions about the property?

We are gladly there for you:

Attributes

  • central location

  • close to the park

  • EV charging

  • furnished

  • maisonette

  • multi-family house

  • parking facility

  • quiet area

  • rail connection nearby

  • short term

  • tram nearby

Furnishings

  • bathtub

  • beautiful

  • cosy

  • dishwasher

  • double bed

  • eat-in kitchen

  • floor heating

  • Gäste-WC

  • linen

  • modern

  • no TV available

  • parking space

  • parquet floor

  • premium

  • refrigerator and freezer

  • shower

  • tiled floor

  • towels

  • washing machine

  • well-kept

  • WLAN

Description

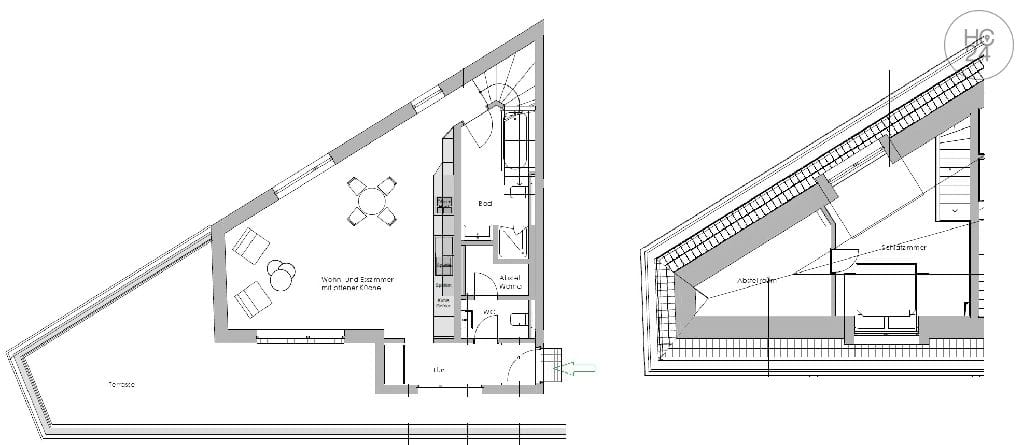
This great apartment over 2 floors is located in Augsburg in the city center. The flat with unusual floor plan is divided into an entrance area with wardrobe, a guest toilet, a storage room (washing machine available), an open-plan living and dining area with kitchen and access to the large terrace and a bathroom (tub and shower). A staircase leads to the upper floor of the apartment. There you will find the bedroom with double bed and walk-in closet. The flat is suitable for 1-2 persons.

A TV can be brought by the tenant (connection only possible via Internet). Internet (wifi) is already registered and can be used immediately.

The monthly rent is Euro 2300.- (incl. 7% VAT), plus parking space (Euro 70.- / month), plus final cleaning (charged per hour).

Regular intermediate cleaning is possible after consultation for an additional charge.

Tenancies are only concluded for a maximum of 6 months. All stores for daily use as well as all public transportation are in the surrounding area. Smoking and pets are not permitted in the apartment.

Energy performance certificate

Consumption index: 14 kWh/m²a (Energy efficiency class: A+)

Energy certificytion type: Consumption certification

Year of construction: 2023

360 Grad Aufnahmen

Functional cookies are required to display this content.

Location

We are there for you personally!

All offers at HC24 are checked by us. If you have any questions we are glad to be at your disposal.

You can also find answers to common questions in our FAQ.

You would like to visit the apartment or rent it directly? Then please fill out our search order.

To search order